Hubinský ateliér
Gulačová + Šereš architekti
What Architects
Riešené územie Dolného Mesta sa nachádza na rozhraní rôznych prostredí, no jeho najsilnejšou vlastnosťou je prírodný charakter okolia, krásne panorámy, zvlnená topografia, blízkosť zelene a záhradkárskej osady. To sú všetko aspekty, ktoré formovali naše vnímanie potenciálov zadania.
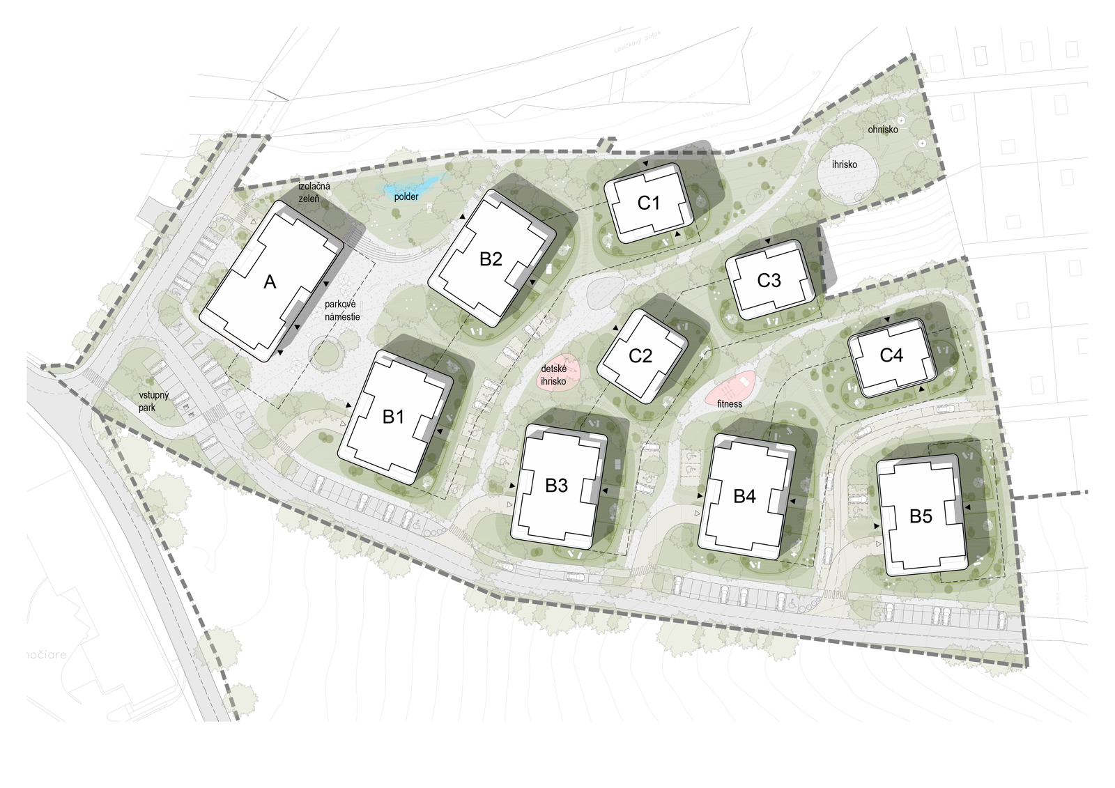
Kľúčovou témou bolo „naťahovanie“ zelene od prírodného prostredia do novonavrhovaného územia bývania. Rovnako aj rešpektovanie súčasného terénu a jeho potenciál na vytvorenie zaujímavého a pestrého prostredia plného priehľadov a prirodzených terénnych situácií.
Preto navrhujeme potiahnuť po vrstevniciach zelené aleje ktoré ju budú vťahovať dovnútra územia a prinesú ju až priamo „pred dvere domu“. Samotné domy budú obkolesené poloverejnými záhradami a budú pripomínať život v záhradách tak ako je tomu v susednej záhradkárskej oblasti.
.jpg)
.jpg)
.jpg)
.jpg)
.jpg)
.jpg)
.jpg)
.jpg)
.jpg)
.jpg)
Dopravné riešenie bolo definované snahou o minimalizovanie zasahovania dopravou do obytného prostredia. Preto sú z hlavnej obslužnej komunikácie napájané jednotlivé parkovacie suterény, samotné domy sú prístupné zo spoločného zjazdného chodníka takže každá druhá alej je no car zone s minimalizovanou dopravou. Pestrosť vonkajšieho prostredia majú odzrkadlovať aj navrhované bytové domy. Tie sú citlivo kladené na vrstevnice terénu tak, aby boli minimalizované terénne úpravy a nevytratil sa príjemný ráz zvlnenej panorámy prostredia. Objemom sa domy zmenšujú smerom k drobnej mierke chát. Spodnú „ochrannú“ vrstvu tvorí najväčší bytový dom obracajúci sa čelom k námestiu a chrbtom k areálu technických služieb. Nasleduje vrstva piatich chodbových bytových domov a nakoniec vrstva komorných objemov štvorice viladomov. Členenie a radenie objemov umožňuje jednak prenikaniu južného slnka hlboko do územia a zároveň vytvára množstvo zaujímavých priehľadov a výhľadov na okolitú atraktívnu panorámu.
.jpg)
.jpg)
.jpg)
.jpg)
.jpg)
.jpg)