Autori: Juraj Hubinský, Alexandra Kotrusová, Kornélia Lincéniová, Patrícia Štefaničková
Objekt Pastoračného centra vychádza z veľmi jednoduchej a logickej schémy rozdelenej na požadované funkčné celky. Základnou ideou je reciprocita – vzťahovanie a vzájomnosť.
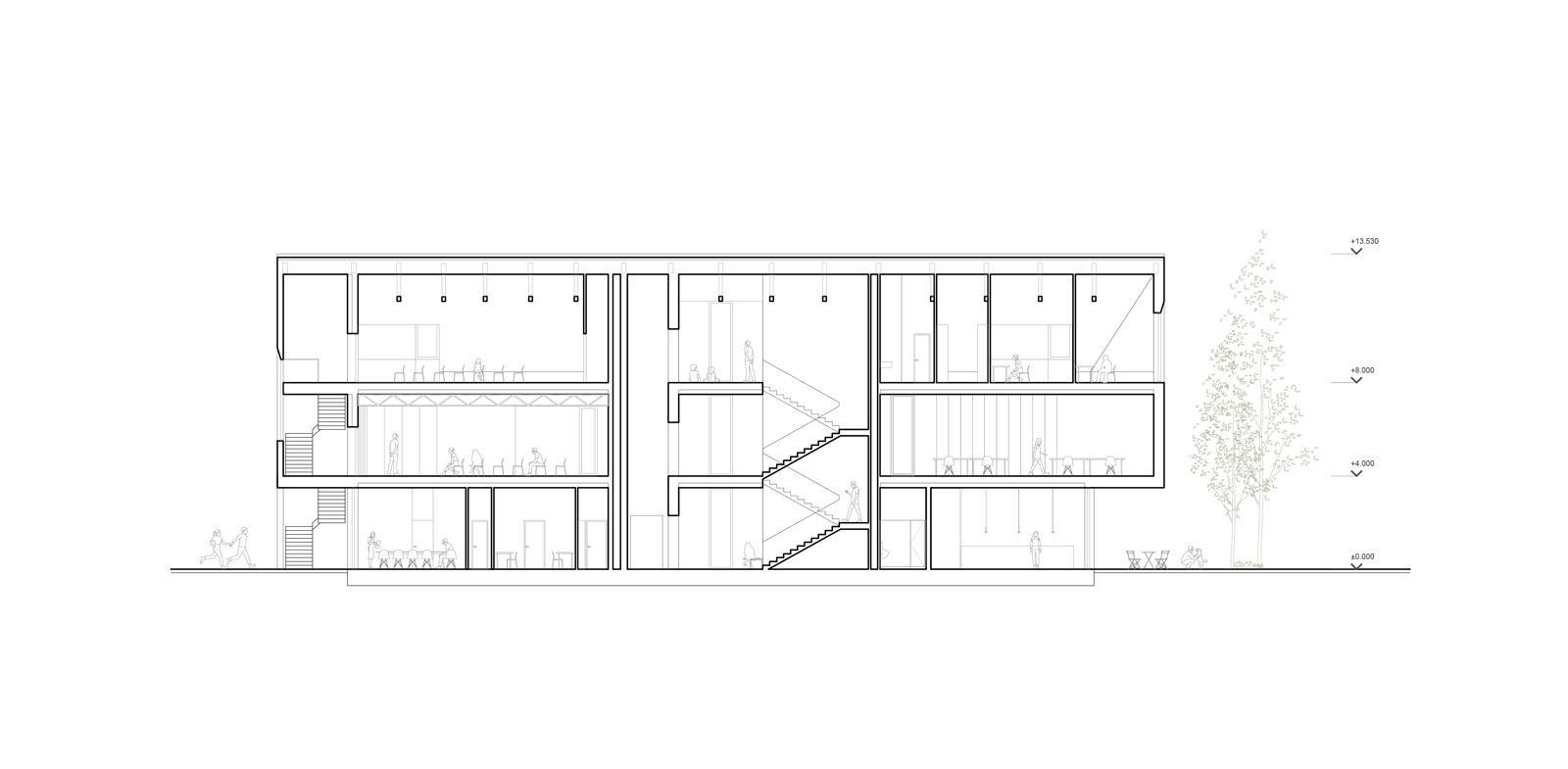
Dynamika vzťahov jednotlivých funkcií je prepojená do jedného celku. Spája ich upieranie sa k vyššiemu – vertikálna hmota kde sa všetci návštevníci stretávajú.
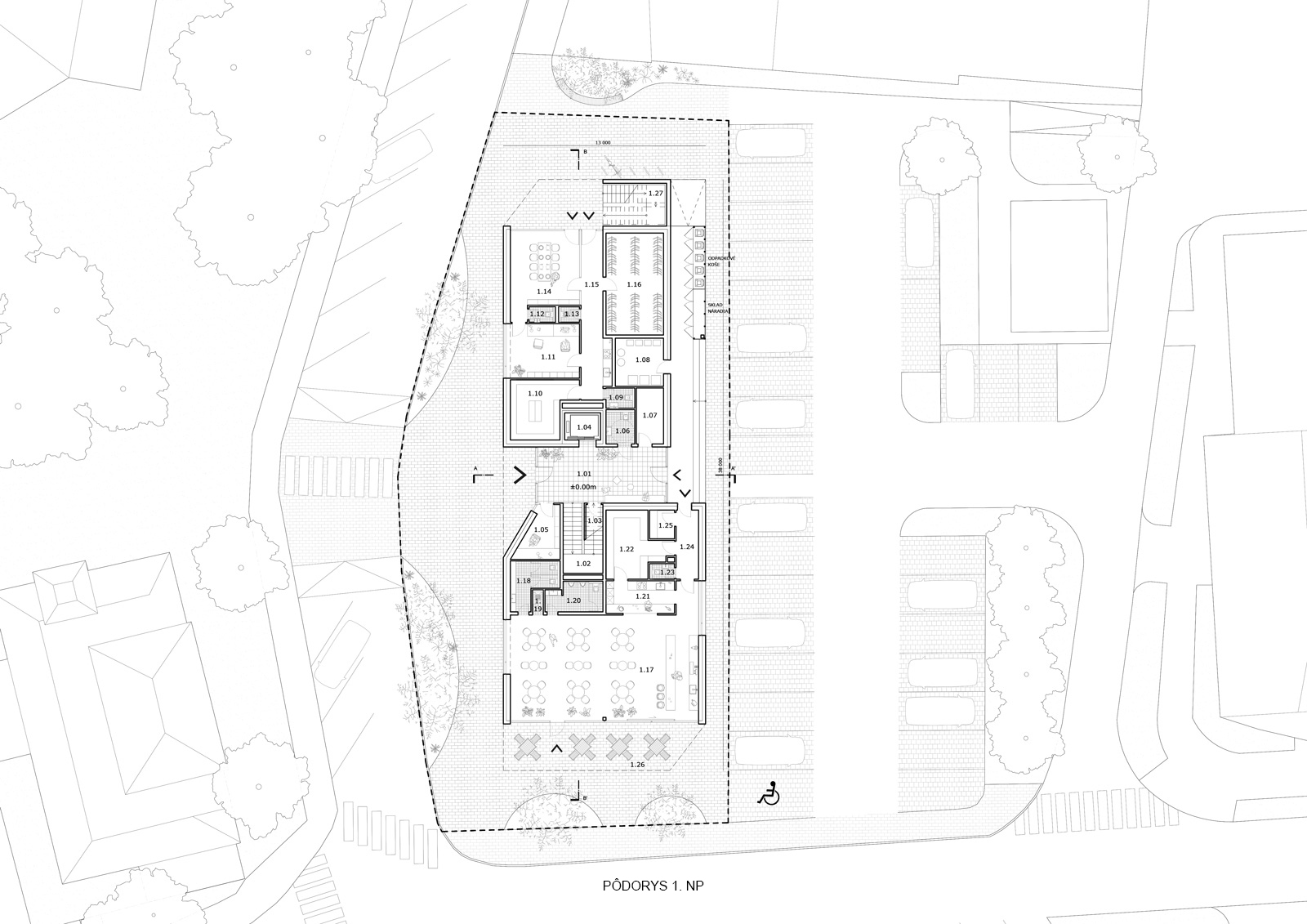
Objekt je urbanisticky nasadený tak, aby čo najviac využíval potenciál svojho veľmi nesúrodého okolia. Hlavnú kompozičnú os umiestňujeme na bránu otvárajúcu sa do dvora Fary cez novovytvorené námestie – piazzetu, cestu až k záhrade za kostolom, ktorú vnímame tak, že by sa do budúcnosti mohla vizuálne prepojiť s navrhovaným pastoračným centrom bránou do chodníka. Os spája návštevníkov prechodom skrz objekt až na jestvujúce parkovisko. Hlavné vstupy do pastoračného centra sú umiestnené práve v tomto komunikačnom uzli v strede objektu.
Vertikálny uzol zároveň spája (2. NP a 3.NP) aj rozdeľuje(1.NP) dom na dva celky. V severnom sa nachádza Farská charita so samostatným vstupom pre návštevníkov a vlastným vstupom pre zamestnancov charity od novovytvorenej „predzáhradky“ s posedením.
.jpg)
.jpg)
.jpg)
.jpg)
.jpg)
Objekt je umiestnený čo najbližšie k parkovisku, ale stále s dostatočným priestorom na prechod okolo budovy a tiež s prestrešeným vstupom s rozptylovým priestorom, pobytovými schodami a rampou pre imobilných. Takýmto osadením domu sme chceli vytvoriť čo najväčší priestor – námestie – piazzetu pred objektom, zo západnej strany a cez vyvýšenú vozovku spomaľovacím prahom ho prepojiť s farou a kostolom. Prah by bol pojednaný tými istými dlažobnými kockami ako okolie objektu.
.jpg)
.jpg)
.jpg)
.jpg)