Autori: Juraj Hubinský, Alexandra Kotrusová, Soňa Langová
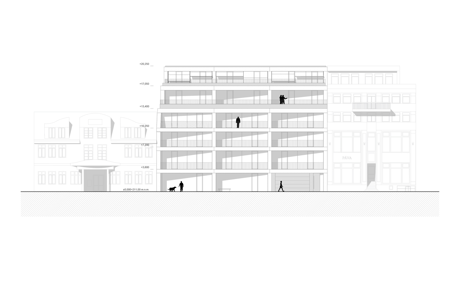
Polyfunkčný objekt EINS v Trenčíne vypĺňa prieluku a zarovnáva uličnú čiaru na Legionárskej ulici na okraji historického centra. Zároveň sa táto ulica stáva predĺžením pešej zóny a posúva hranice centra mesta do širšieho okolia. Kultivovaný objekt, ktorý je len na skok peši do vnútorného mesta tak dostane okrem svojej sebavedomej architektúry aj kvalitný verejný priestor.
Architektonicky je objekt jasne definovaný prísnou geometrickou mriežkou, rastrom, ktorý logicky vychádza z vnútorného členenia priestoru. Živú ulicu obohacuje polyfunkčný parter s komerčne využívanými prevádzkami, ktorý aktivuje pešiu zónu. Každé pole čelnej fasády prislúcha jednému bytu alebo prevádzke. Obsahuje loggie, ktoré tvoria medzipriestor medzi interiérom a exteriérom objektu a sú zároveň nárazníkovou zónou ulice. Ich veľkorysé rozmery ponúkajú možnosť využívať dom nielen v ergonomicky vyladených dispozíciách, ale aj v jeho predĺžení do exteriéru.
.jpg)
.jpg)
.jpg)
.jpg)
.jpg)
.jpg)
Vnútorný dvor je introvertnejší a ponúka o to väčší pokoj s možnosťou využívať predzáhradky, terasy a loggie. Horné mezonetové penthousy sú obohatené o rozľahlé terasy doplnené zeleňou. Objekt sa vizuálne prepája s exteriérom skrz veľkoformátové okná, ktoré zabezpečujú okrem jedinečných výhľadov aj bohaté presvetlenie.
.jpg)
.jpg)
.jpg)
Objekt dotvára stále sa zlepšujúci verejný priestor a je elegantným zásahom dotvárajúcim rôznorodý kontext okolia. Je príkladom jasne čitateľnej, súčasnej architektúry podporujúcej okolitý urbanizmus s kvalitným vnútorným priestorom a úprimnou materialitou.