Autori: Juraj Hubinský, Peter Kuklica, Martin Smerek
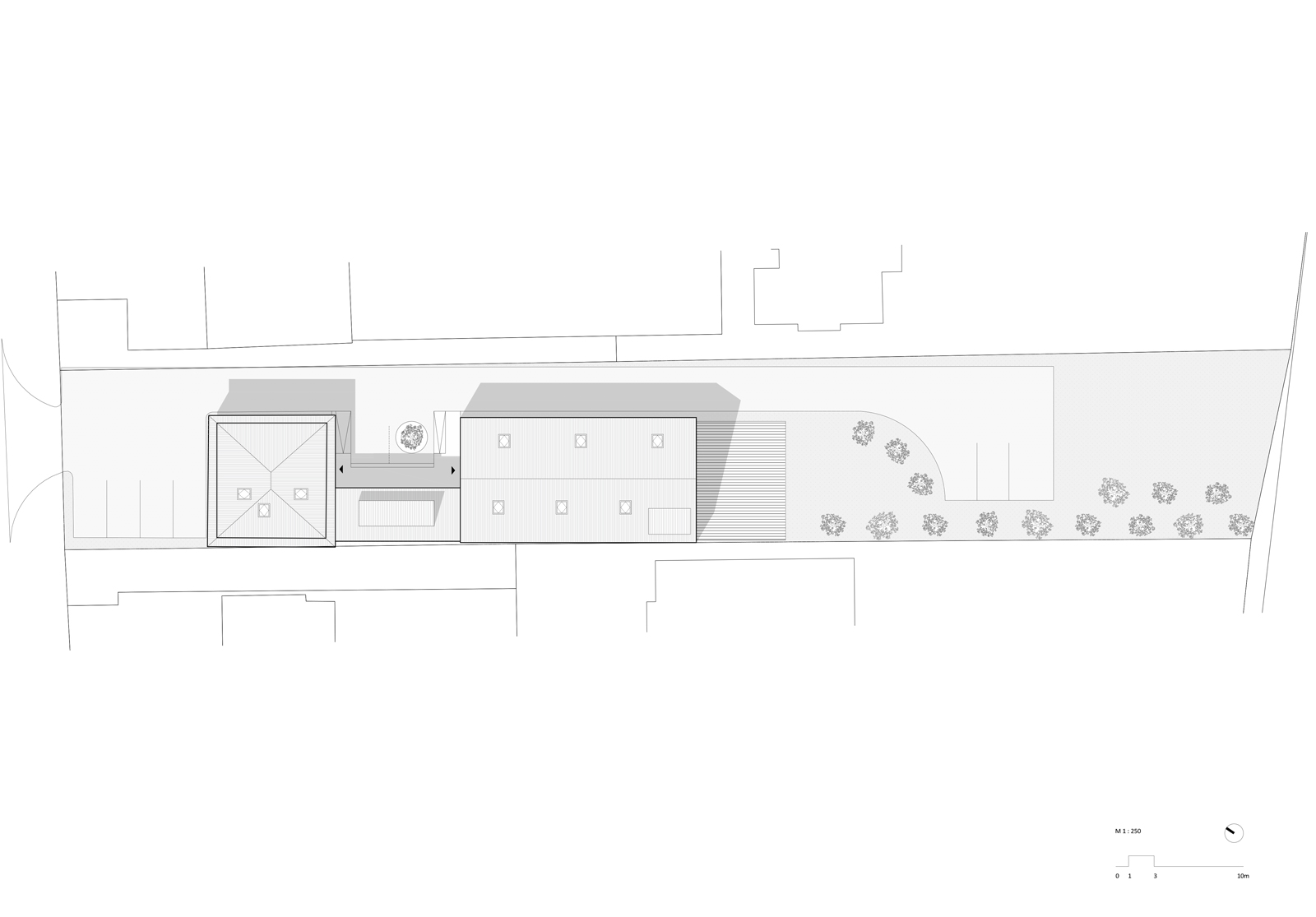
Na tradičnej vidieckej podlhovastej parcele s pôvodným domom na začiatku pozemku sme vytvorili reštauráciu s možnosťou ubytovania pre hostí, terasou a záhradou. Radenie hmôt a funkcií na pozemku nasleduje v takomto poradí: pôvodný dom - patio - prístavba - terasa - záhrada. Staré - novšie - najnovšie.
Zadanie od majiteľov znelo, že z pôvodného domu z 50-tych rokov minulého storočia sa malo vytvoriť zázemie firmy a skladové priestory. V jeho podkroví dvojizbový byt. V prepojovacom krčku, ktorý bol k domu dostavaný neskôr má vzniknúť kuchyňa a v prístavbe reštaurácia s ubytovaním. Kuchyňu s veľkým oknom sme orientovali do novovzniknutého patia. Reštaurácia uzatvára patio, ktoré je zároveň vstupným priestorom do prístavby.
.jpg)
.jpg)
.jpg)
.jpg)
.jpg)
.jpg)
.jpg)
.jpg)
.jpg)
.jpg)
.jpg)
.jpg)
.jpg)
.jpg)